cena Lokalu usługowego (netto)

735 500 PLN

cena za metr kw.

10 000 PLN

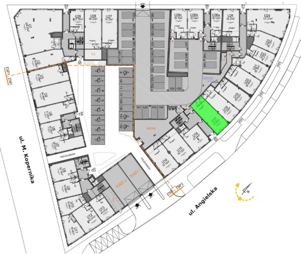
Budynek Angielska 30
Powierzchnia 73,55 m2
Piętro 0 (Parter)
Całkowita cena netto
735 500 PLN