cena Mieszkania

598 950 PLN

cena za metr kw.

11 000 PLN

Budynek Kopernika IV
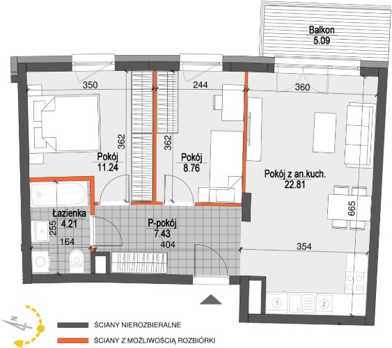
Powierzchnia 54,45 m2
Piętro 1 (Piętro I)
Pokoje 3
Całkowita cena brutto
598 950 PLN