cena Mieszkania

495 364 PLN

cena za metr kw.

11 800 PLN

Budynek Kopernika IV
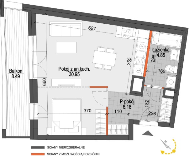
Powierzchnia 41,98 m2
Piętro 2 (Piętro II)
Pokoje 1
Całkowita cena brutto
495 364 PLN