cena Mieszkania

705 000 PLN

cena za metr kw.

12 500 PLN

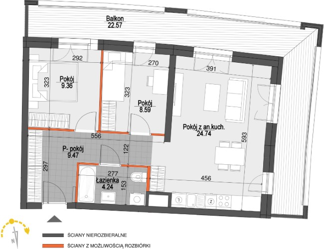
Budynek Kopernika IV
Powierzchnia 56,40 m2
Piętro 5 (Piętro V)
Pokoje 3
Balkon ok. 22,57 m²
Całkowita cena brutto
705 000 PLN