cena Mieszkania

493 920 PLN

cena za metr kw.

12 000 PLN

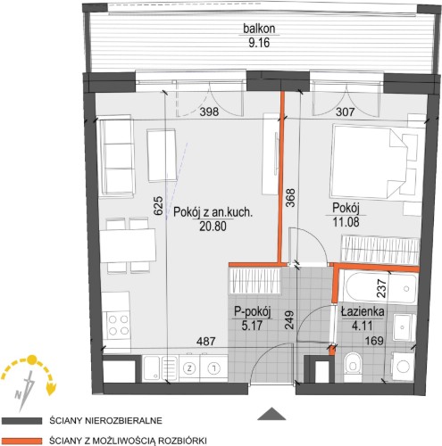
Budynek Kopernika IV
Powierzchnia 41,16 m2
Piętro 2 (Piętro II)
Pokoje 2
Całkowita cena brutto
493 920 PLN