cena Mieszkania

631 620 PLN

cena za metr kw.

11 600 PLN

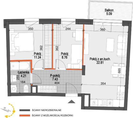
Budynek Kopernika IV
Powierzchnia 54,45 m2
Piętro 4 (Piętro IV)
Pokoje 3
Całkowita cena brutto
631 620 PLN