cena Mieszkania

503 760 PLN

cena za metr kw.

12 000 PLN

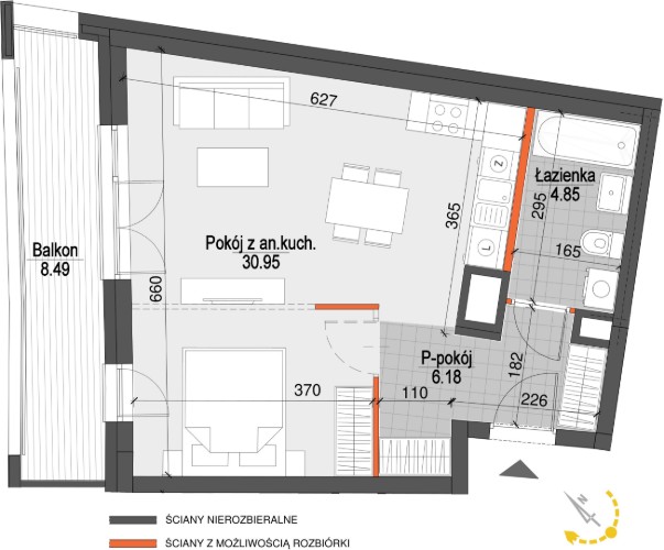
Budynek Kopernika IV
Powierzchnia 41,98 m2
Piętro 4 (Piętro IV)
Pokoje 1
Całkowita cena brutto
503 760 PLN