cena Mieszkania

637 065 PLN

cena za metr kw.

11 700 PLN

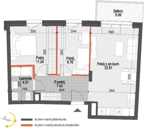
Budynek Kopernika IV
Powierzchnia 54,45 m2
Piętro 5 (Piętro V)
Pokoje 3
Całkowita cena brutto
637 065 PLN