cena Mieszkania

507 958 PLN

cena za metr kw.

12 100 PLN

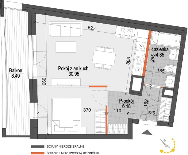
Budynek Kopernika IV
Powierzchnia 41,98 m2
Piętro 5 (Piętro V)
Pokoje 1
Całkowita cena brutto
507 958 PLN