cena Mieszkania

646 289 PLN

cena za metr kw.

11 900 PLN

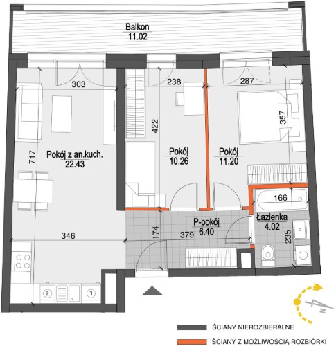
Budynek Kopernika IV
Powierzchnia 54,31 m2
Piętro 6 (Piętro VI)
Pokoje 3
Całkowita cena brutto
646 289 PLN