cena Mieszkania

464 684 PLN

cena za metr kw.

11 800 PLN

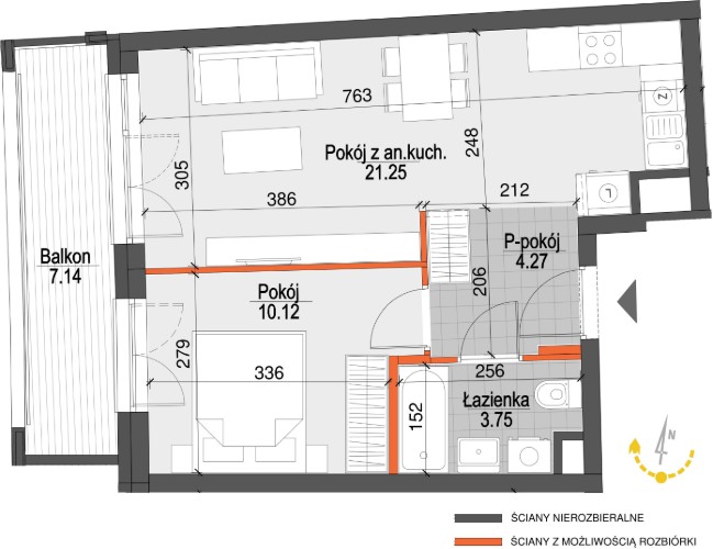
Budynek Kopernika IV
Powierzchnia 39,38 m2
Piętro 1 (Piętro I)
Pokoje 2
Całkowita cena brutto
464 684 PLN