cena Mieszkania

603 344 PLN

cena za metr kw.

11 200 PLN

Budynek Kopernika IV
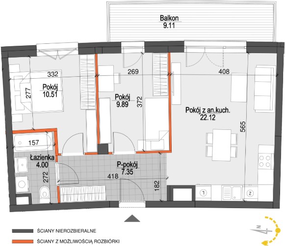
Powierzchnia 53,87 m2
Piętro 1 (Piętro I)
Pokoje 3
Całkowita cena brutto
603 344 PLN