cena Mieszkania

635 666 PLN

cena za metr kw.

11 800 PLN

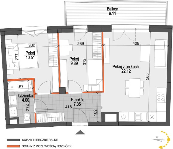
Budynek Kopernika IV
Powierzchnia 53,87 m2
Piętro 2 (Piętro II)
Pokoje 3
Całkowita cena brutto
635 666 PLN