cena Mieszkania

504 423 PLN

cena za metr kw.

12 300 PLN

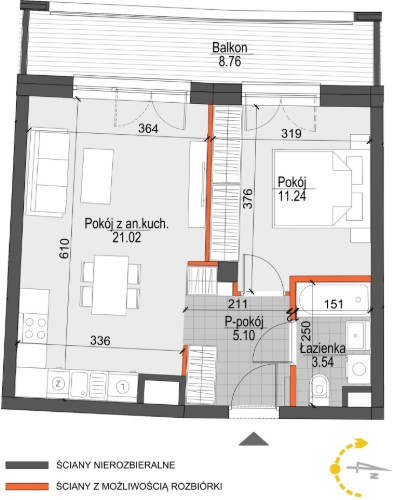
Budynek Kopernika IV
Powierzchnia 41,01 m2
Piętro 3 (Piętro III)
Pokoje 2
Całkowita cena brutto
504 423 PLN