cena Mieszkania

620 730 PLN

cena za metr kw.

11 400 PLN

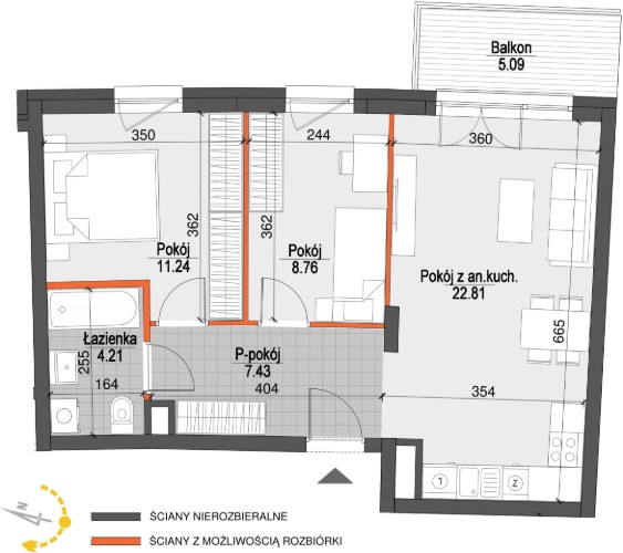
Budynek Kopernika IV
Powierzchnia 54,45 m2
Piętro 2 (Piętro II)
Pokoje 3
Całkowita cena brutto
620 730 PLN