cena Mieszkania

512 625 PLN

cena za metr kw.

12 500 PLN

Budynek Kopernika IV
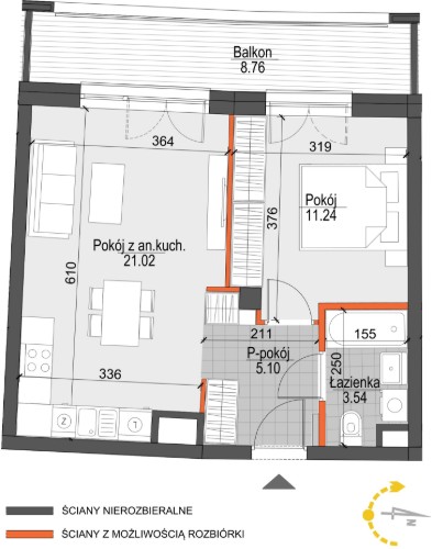
Powierzchnia 41,01 m2
Piętro 5 (Piętro V)
Pokoje 2
Całkowita cena brutto
512 625 PLN