cena Mieszkania

651 827 PLN

cena za metr kw.

12 100 PLN

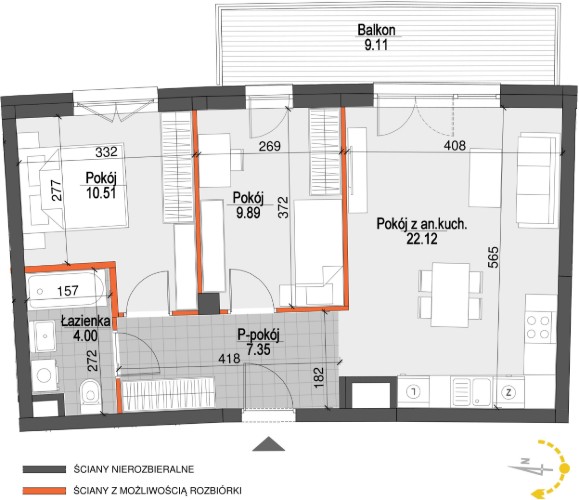
Budynek Kopernika IV
Powierzchnia 53,87 m2
Piętro 5 (Piętro V)
Pokoje 3
Całkowita cena brutto
651 827 PLN