cena Mieszkania

624 565 PLN

cena za metr kw.

11 500 PLN

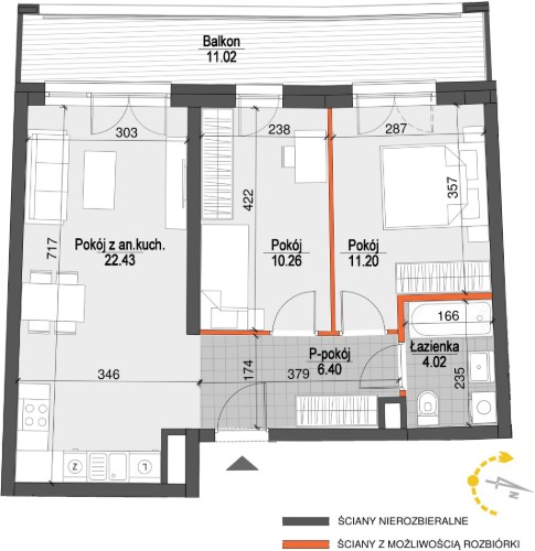
Budynek Kopernika IV
Powierzchnia 54,31 m2
Piętro 2 (Piętro II)
Pokoje 3
Całkowita cena brutto
624 565 PLN