cena Mieszkania

565 290 PLN

cena za metr kw.

8 250 PLN

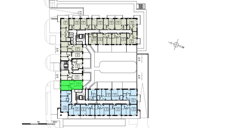
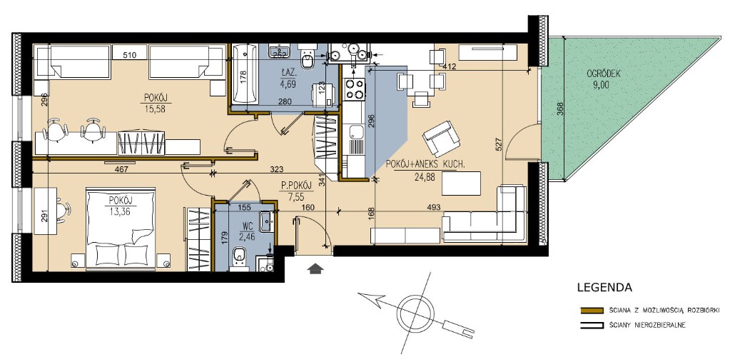
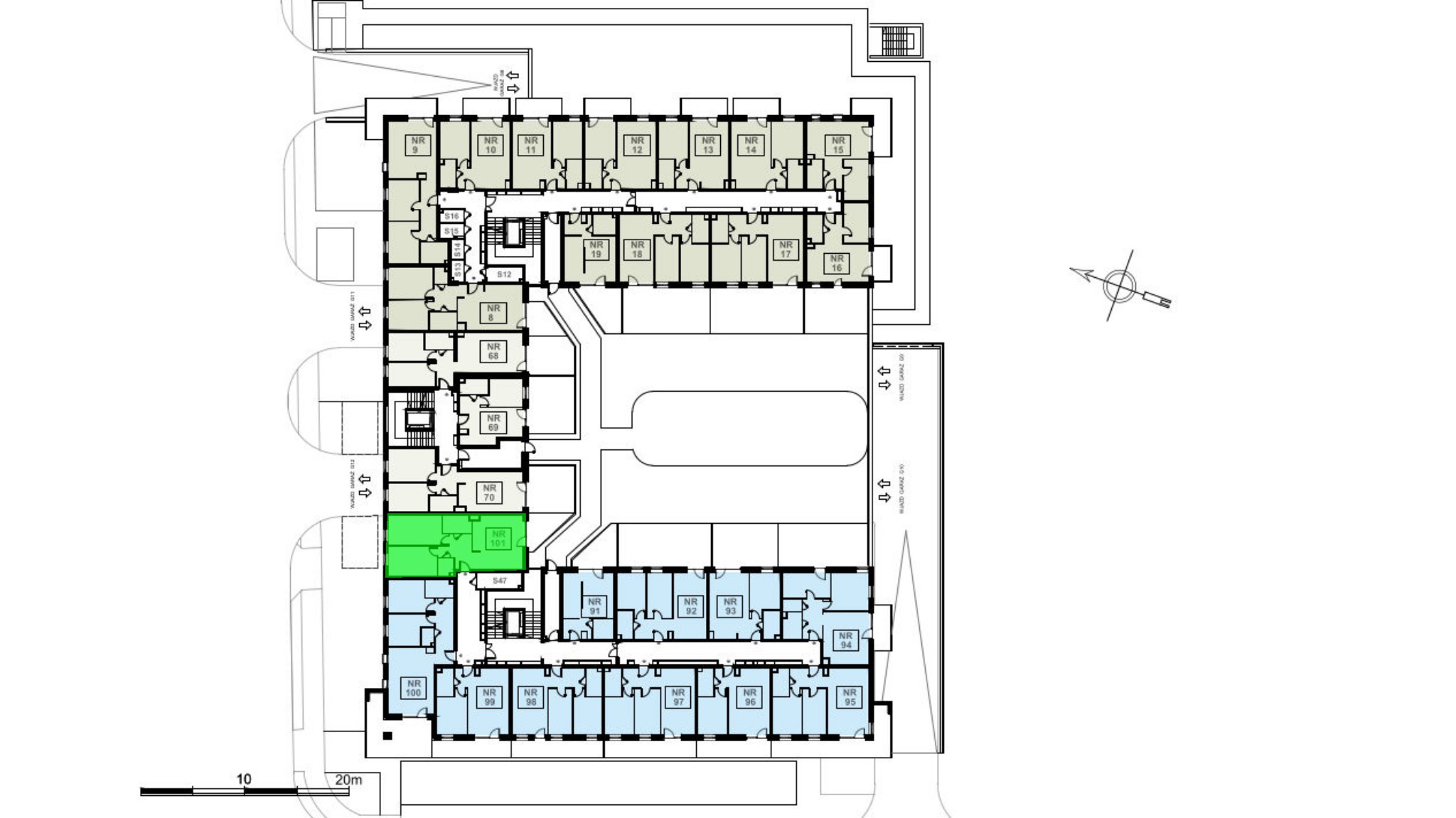
Budynek Ludowa C
Powierzchnia 68,52 m2
Piętro 1 (Piętro I)
Pokoje 3
Całkowita cena brutto
565 290 PLN