cena Mieszkania

351 220 PLN

cena za metr kw.

8 500 PLN

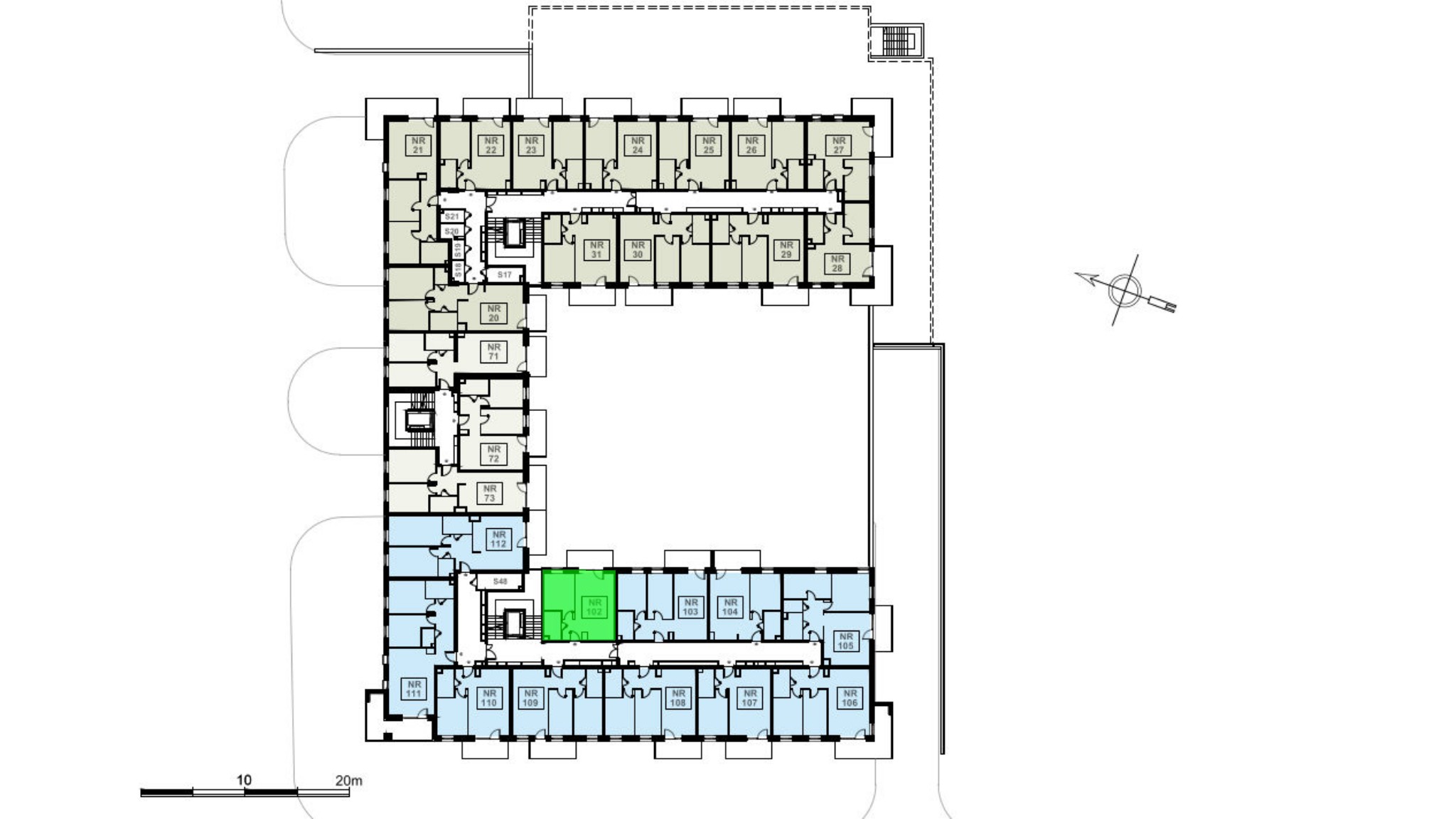
Budynek Ludowa C
Powierzchnia 41,32 m2
Piętro 2 (Piętro II)
Pokoje 2
Całkowita cena brutto
351 220 PLN