cena Mieszkania

347 676 PLN

cena za metr kw.

8 400 PLN

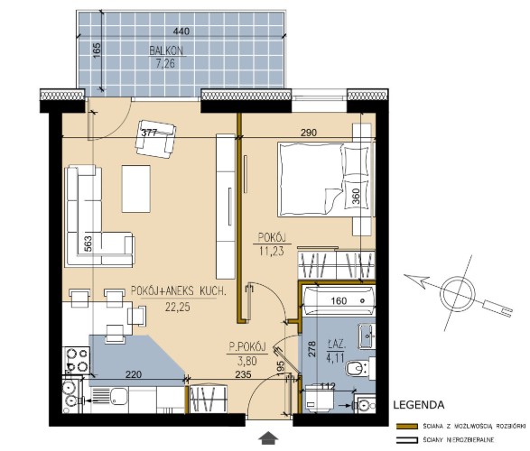
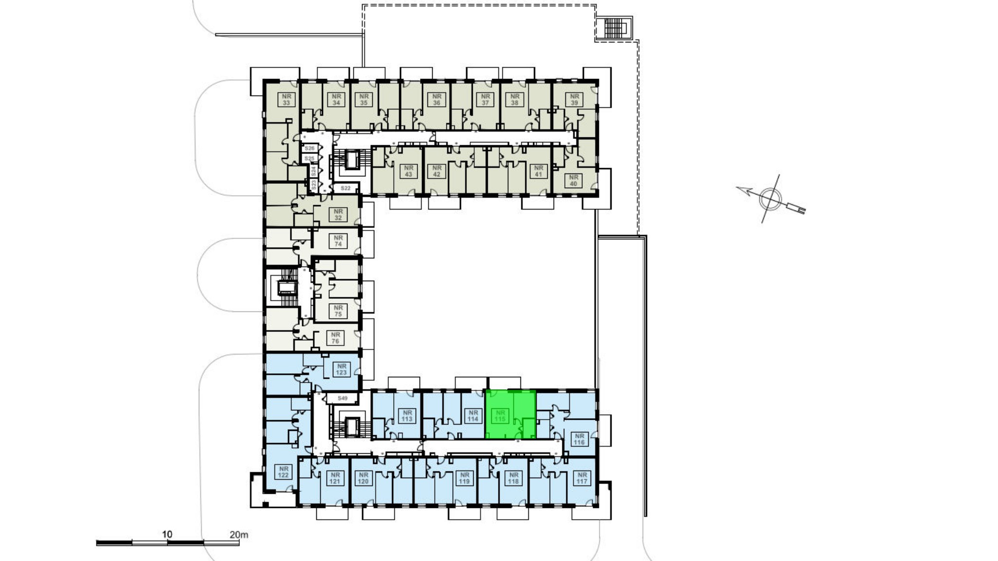
Budynek Ludowa C
Powierzchnia 41,39 m2
Piętro 3 (Piętro III)
Pokoje 2
Całkowita cena brutto
347 676 PLN