cena Mieszkania

438 987 PLN

cena za metr kw.

8 300 PLN

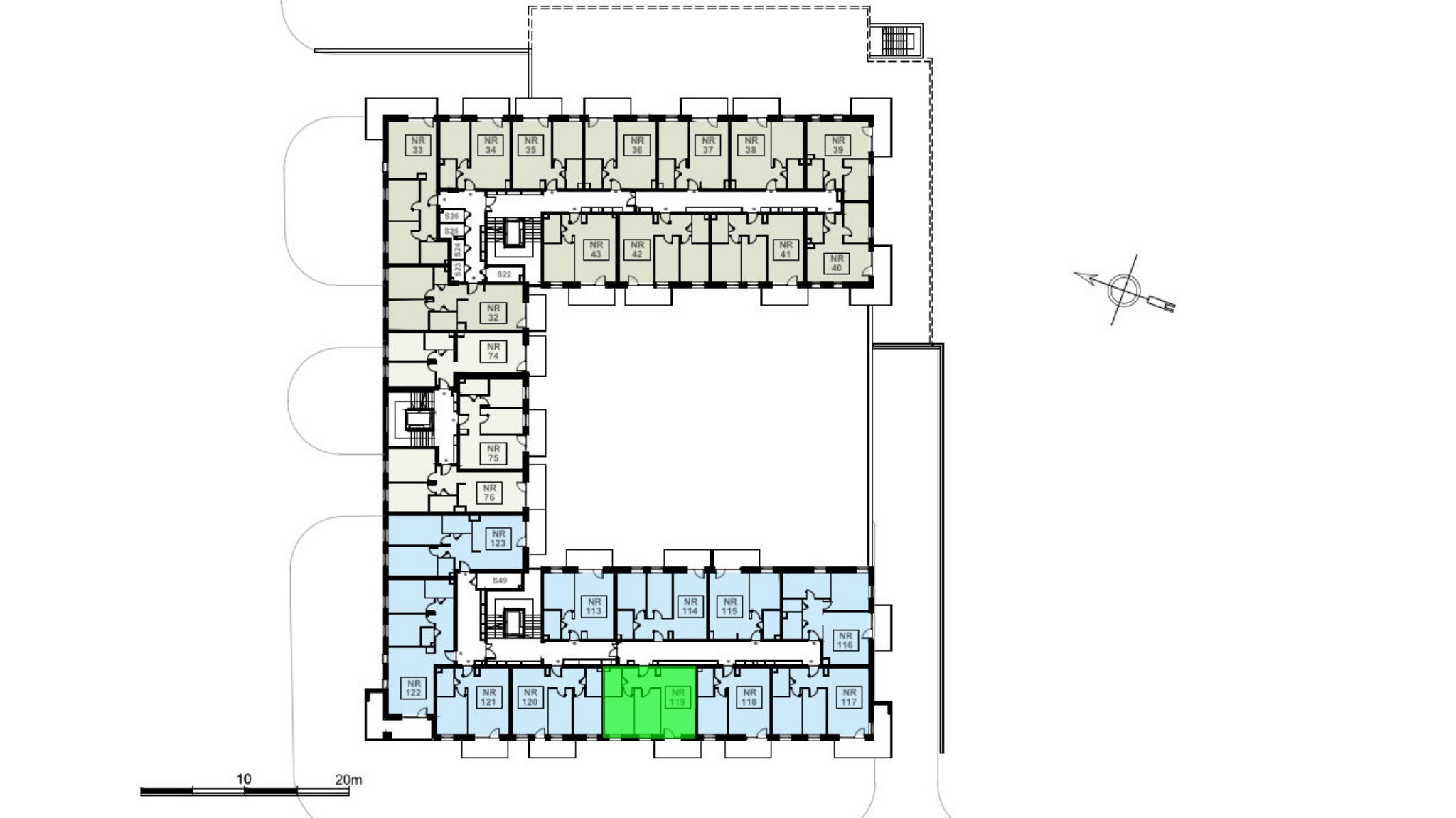
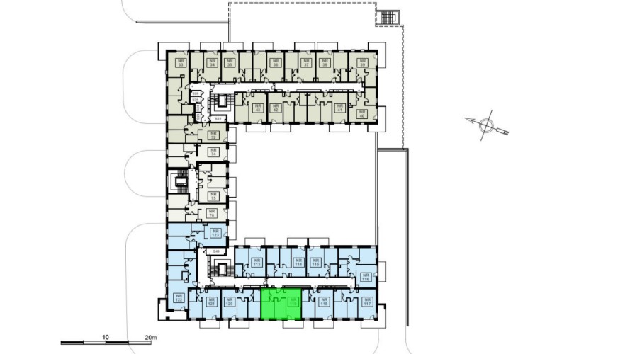
Budynek Ludowa C
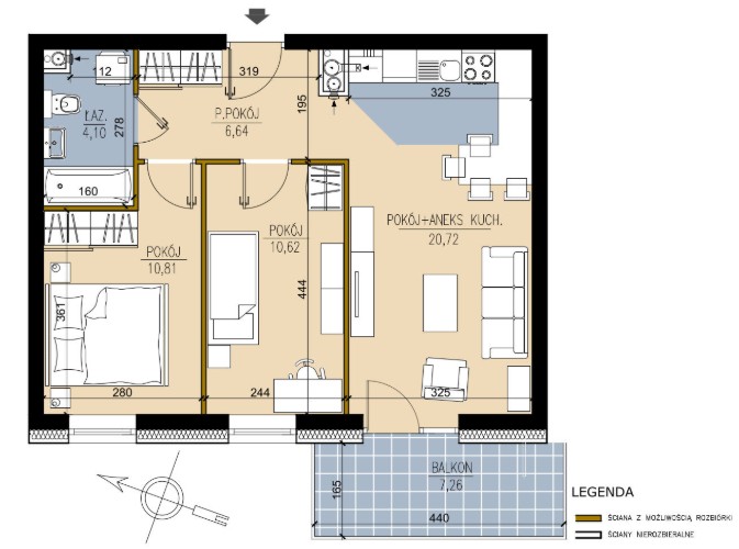
Powierzchnia 52,89 m2
Piętro 3 (Piętro III)
Pokoje 3
Całkowita cena brutto
438 987 PLN