cena Mieszkania

449 055 PLN

cena za metr kw.

8 500 PLN

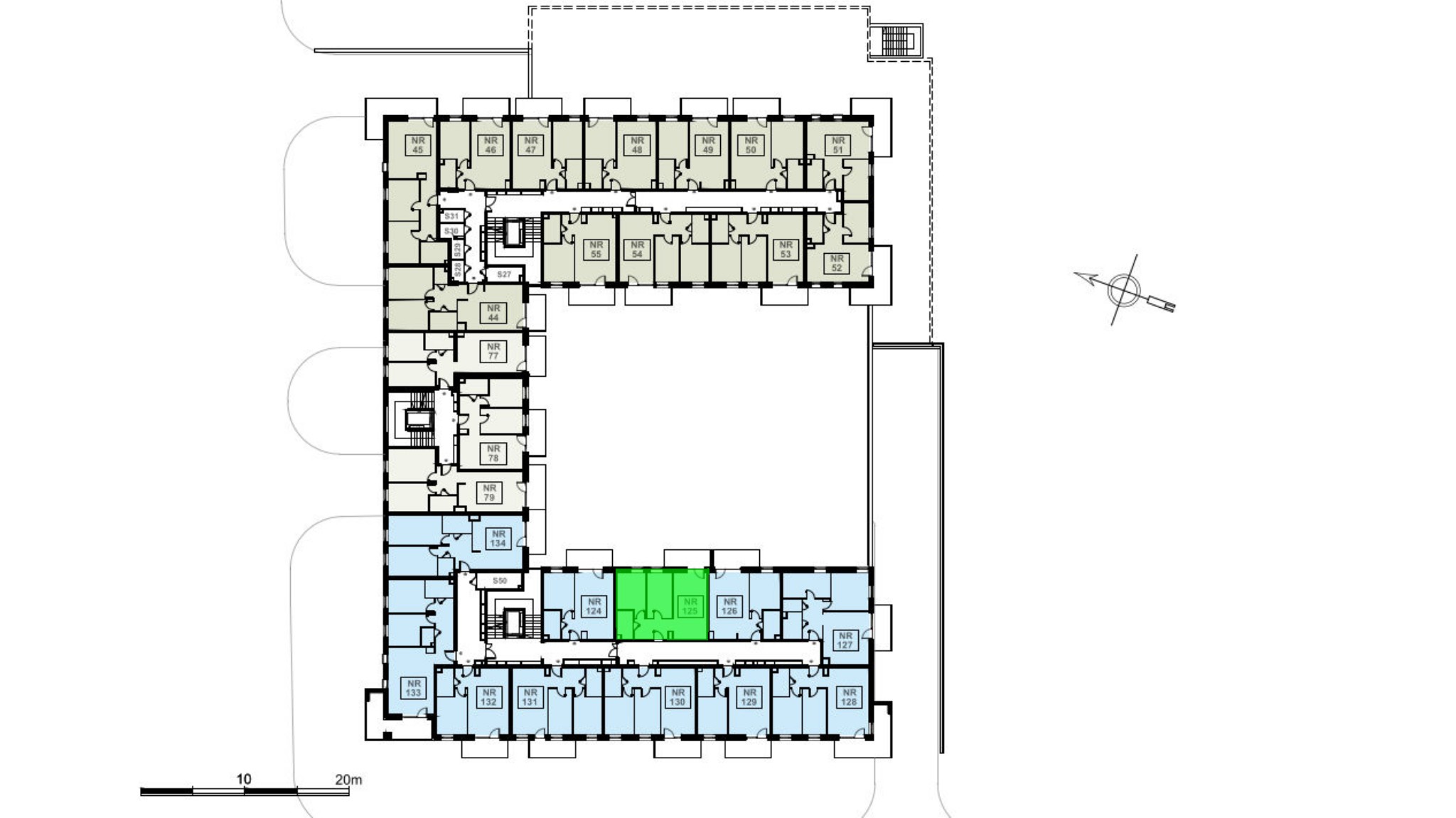
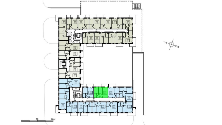
Budynek Ludowa C
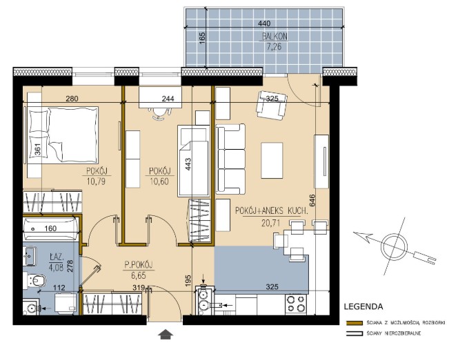
Powierzchnia 52,83 m2
Piętro 4 (Piętro IV)
Pokoje 3
Całkowita cena brutto
449 055 PLN