cena Mieszkania

438 987 PLN

cena za metr kw.

8 300 PLN

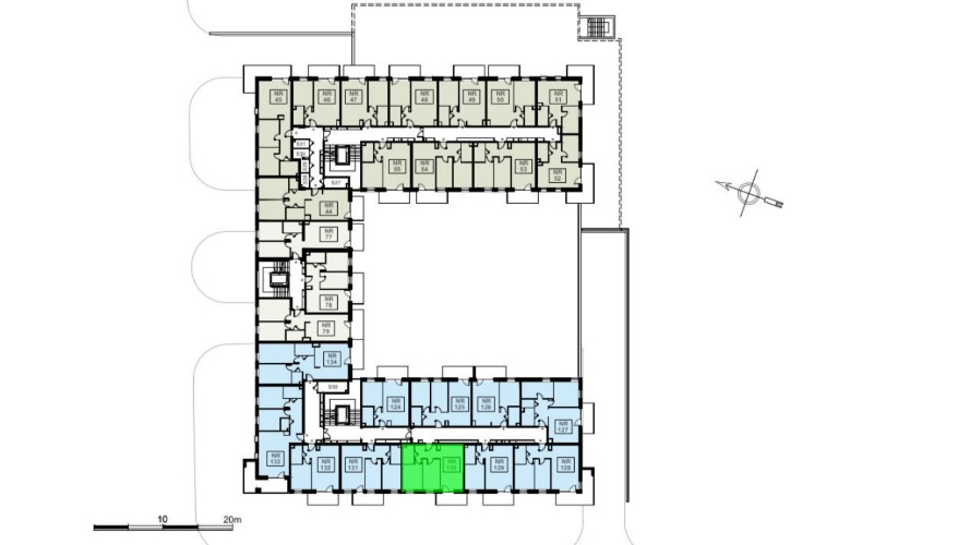
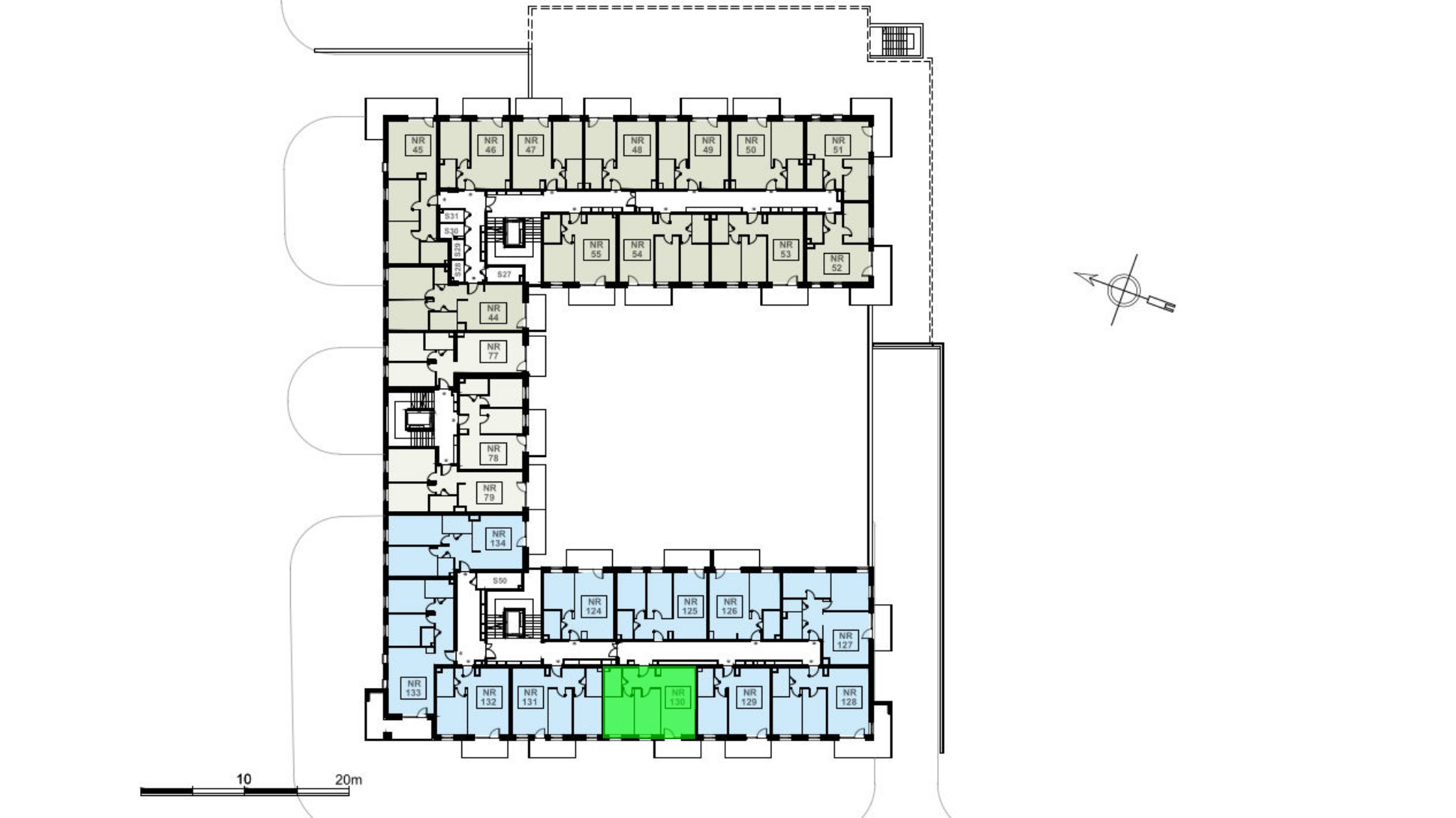
Budynek Ludowa C
Powierzchnia 52,89 m2
Piętro 4 (Piętro IV)
Pokoje 3
Całkowita cena brutto
438 987 PLN