cena Mieszkania

359 397 PLN

cena za metr kw.

8 700 PLN

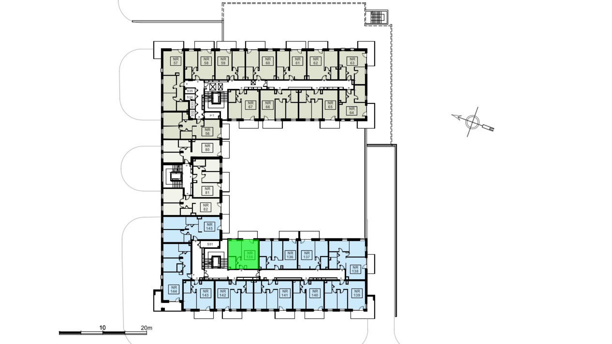
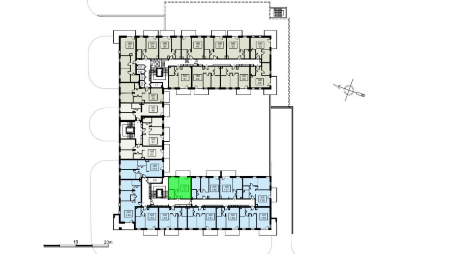
Budynek Ludowa C
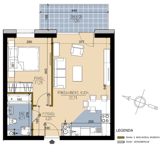
Powierzchnia 41,31 m2
Piętro 5 (Piętro V)
Pokoje 2
Całkowita cena brutto
359 397 PLN