cena Mieszkania

584 715 PLN

cena za metr kw.

8 500 PLN

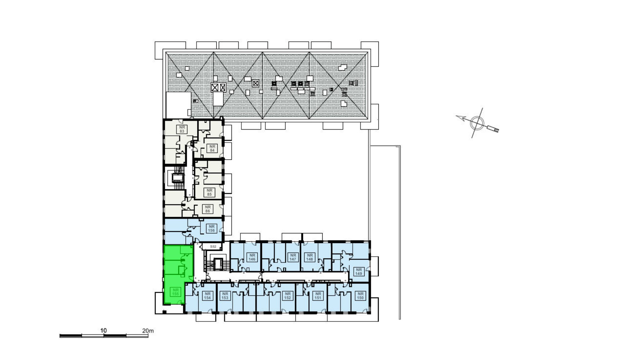
Budynek Ludowa C
Powierzchnia 68,79 m2
Piętro 6 (Piętro VI)
Pokoje 3
Całkowita cena brutto
584 715 PLN