cena Mieszkania

501 984 PLN

cena za metr kw.

8 300 PLN

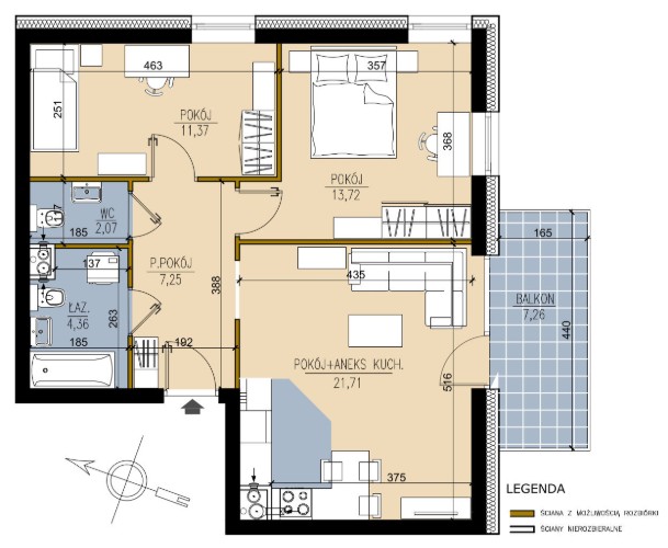
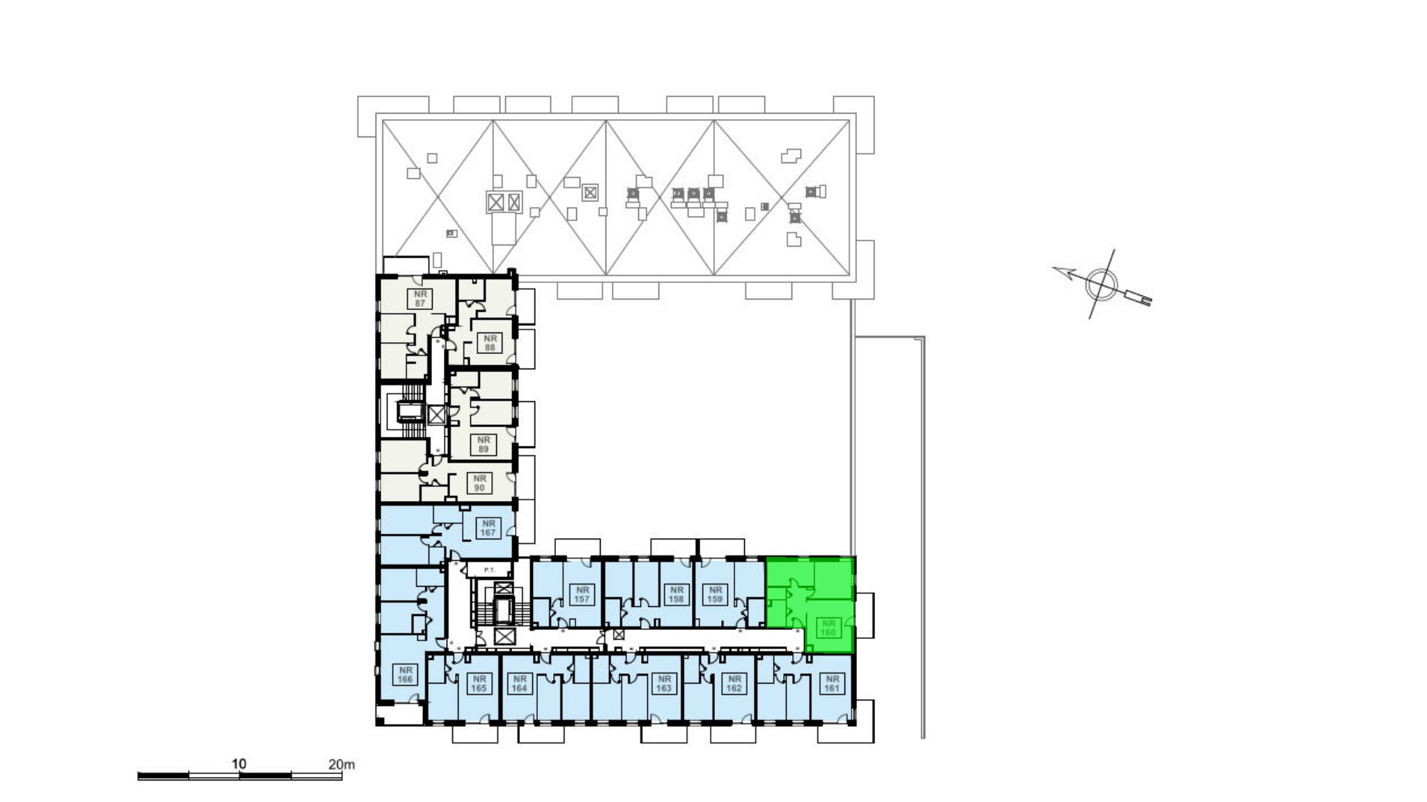
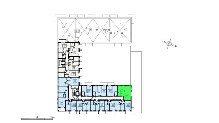
Budynek Ludowa C
Powierzchnia 60,48 m2
Piętro 7 (Piętro VII)
Pokoje 3
Całkowita cena brutto
501 984 PLN