cena Mieszkania

345 280 PLN

cena za metr kw.

8 300 PLN

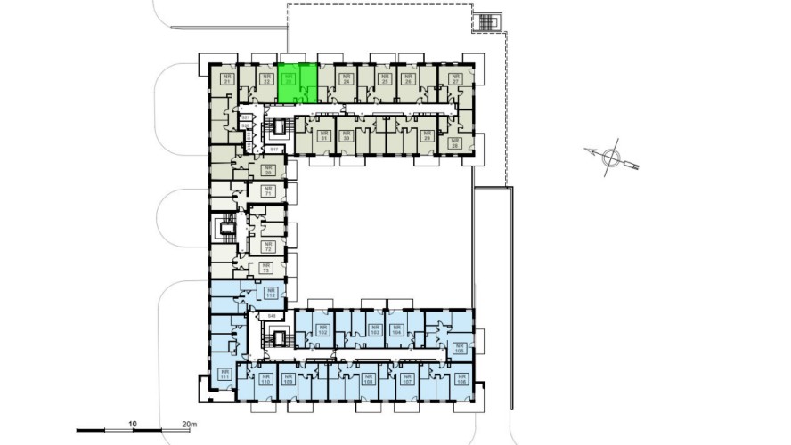
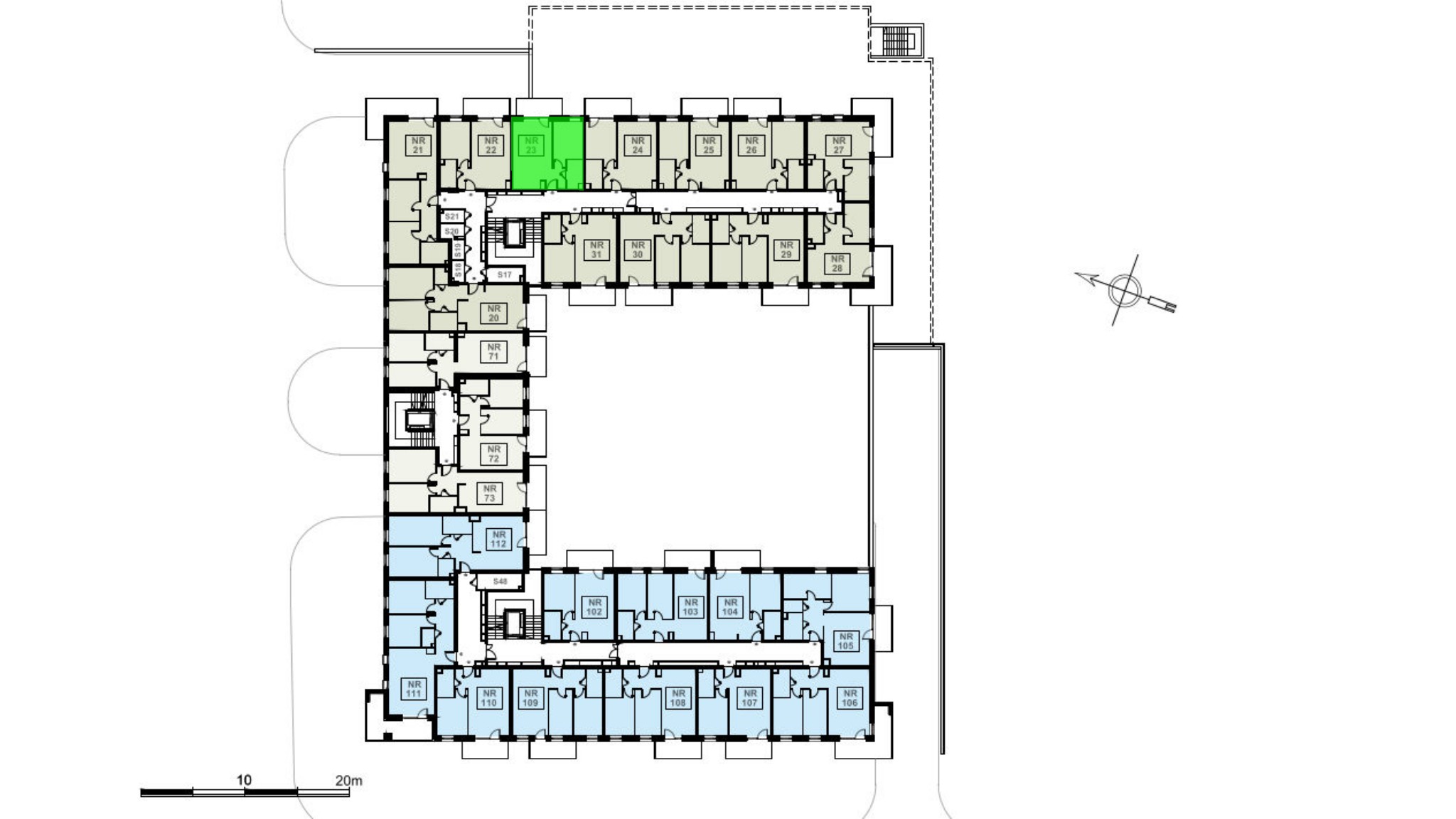
Budynek Ludowa C
Powierzchnia 41,60 m2
Piętro 2 (Piętro II)
Pokoje 2
Całkowita cena brutto
345 280 PLN