cena Mieszkania

457 464 PLN

cena za metr kw.

8 400 PLN

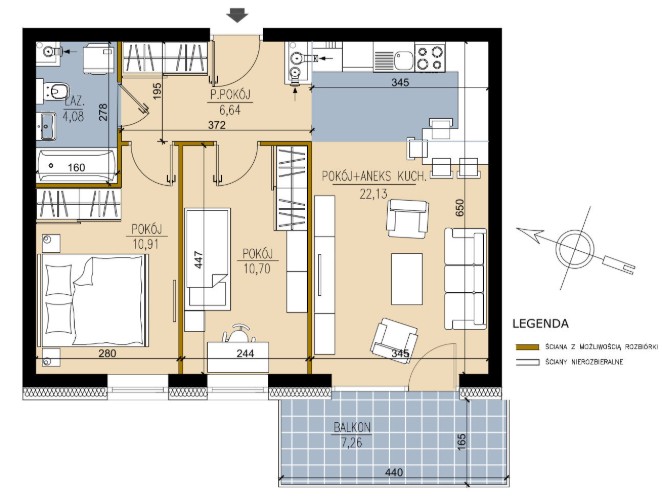
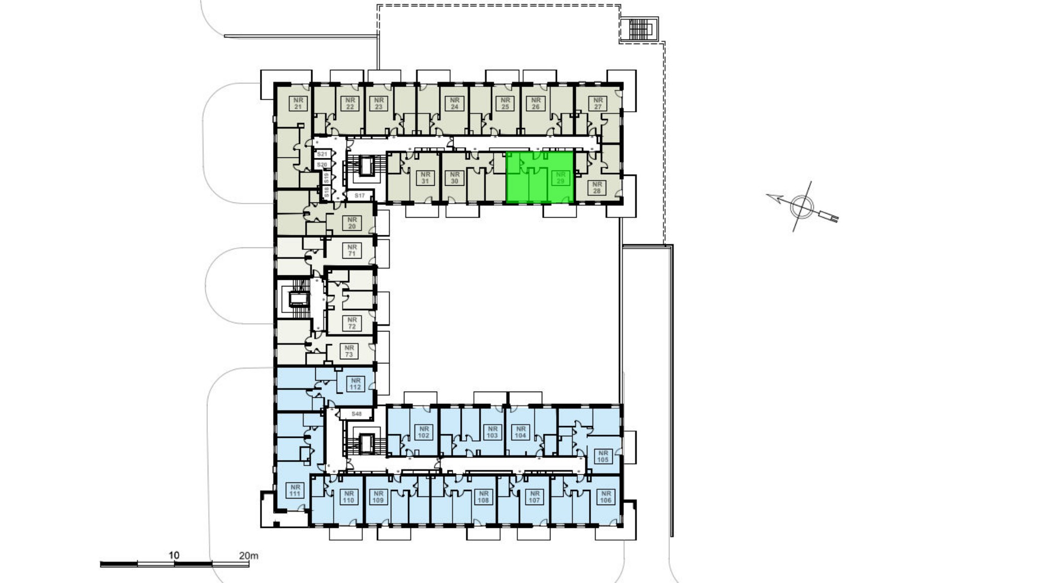
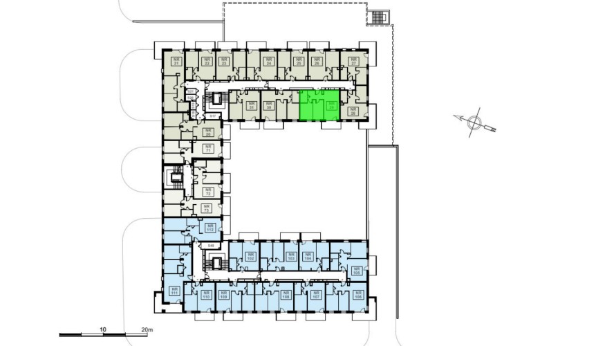
Budynek Ludowa C
Powierzchnia 54,46 m2
Piętro 2 (Piętro II)
Pokoje 3
Całkowita cena brutto
457 464 PLN