cena Mieszkania

435 830 PLN

cena za metr kw.

8 200 PLN

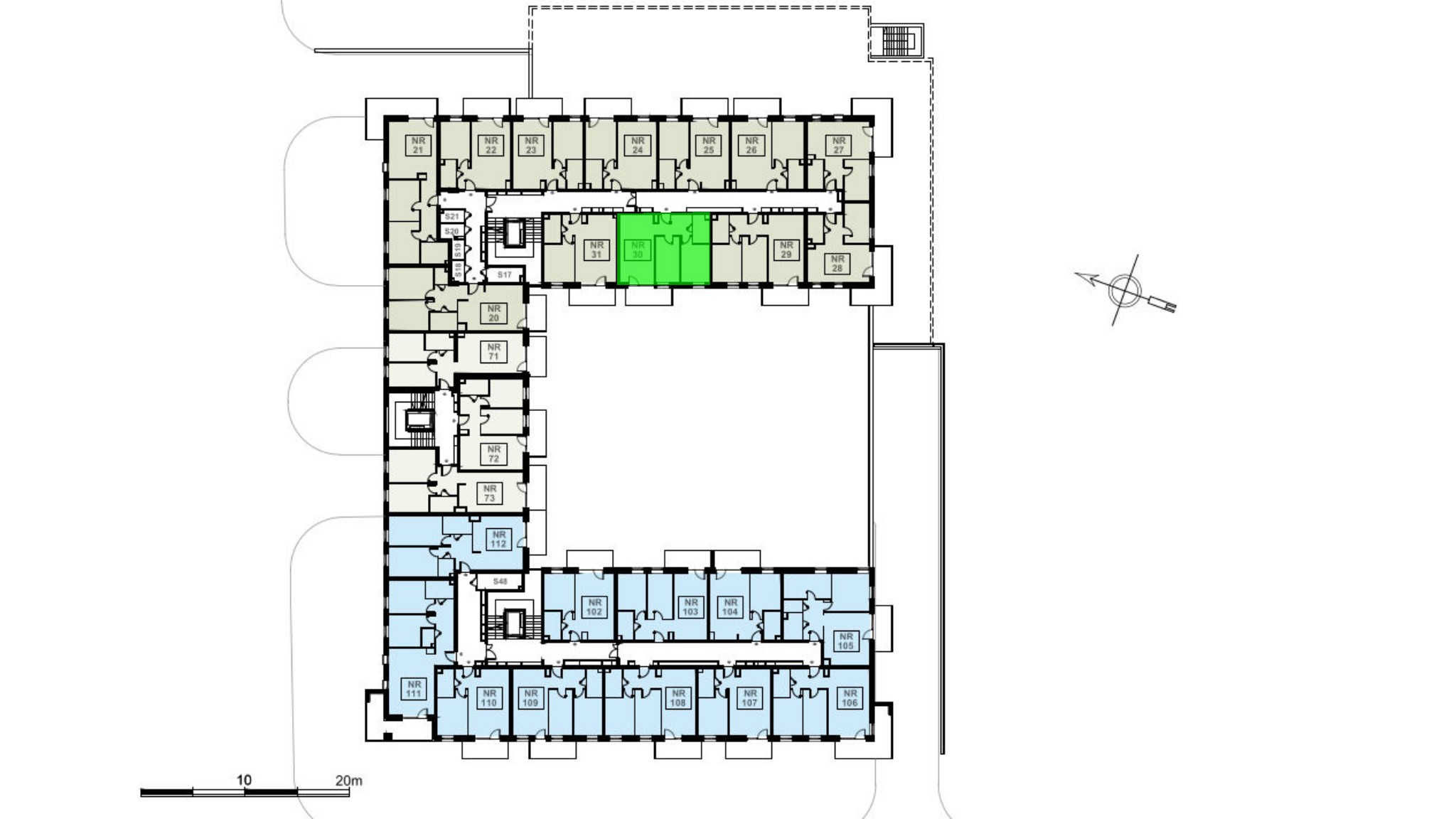
Budynek Ludowa C
Powierzchnia 53,15 m2
Piętro 2 (Piętro II)
Pokoje 3
Całkowita cena brutto
435 830 PLN