cena Mieszkania

364 395 PLN

cena za metr kw.

8 500 PLN

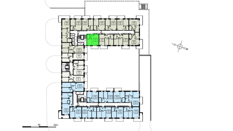
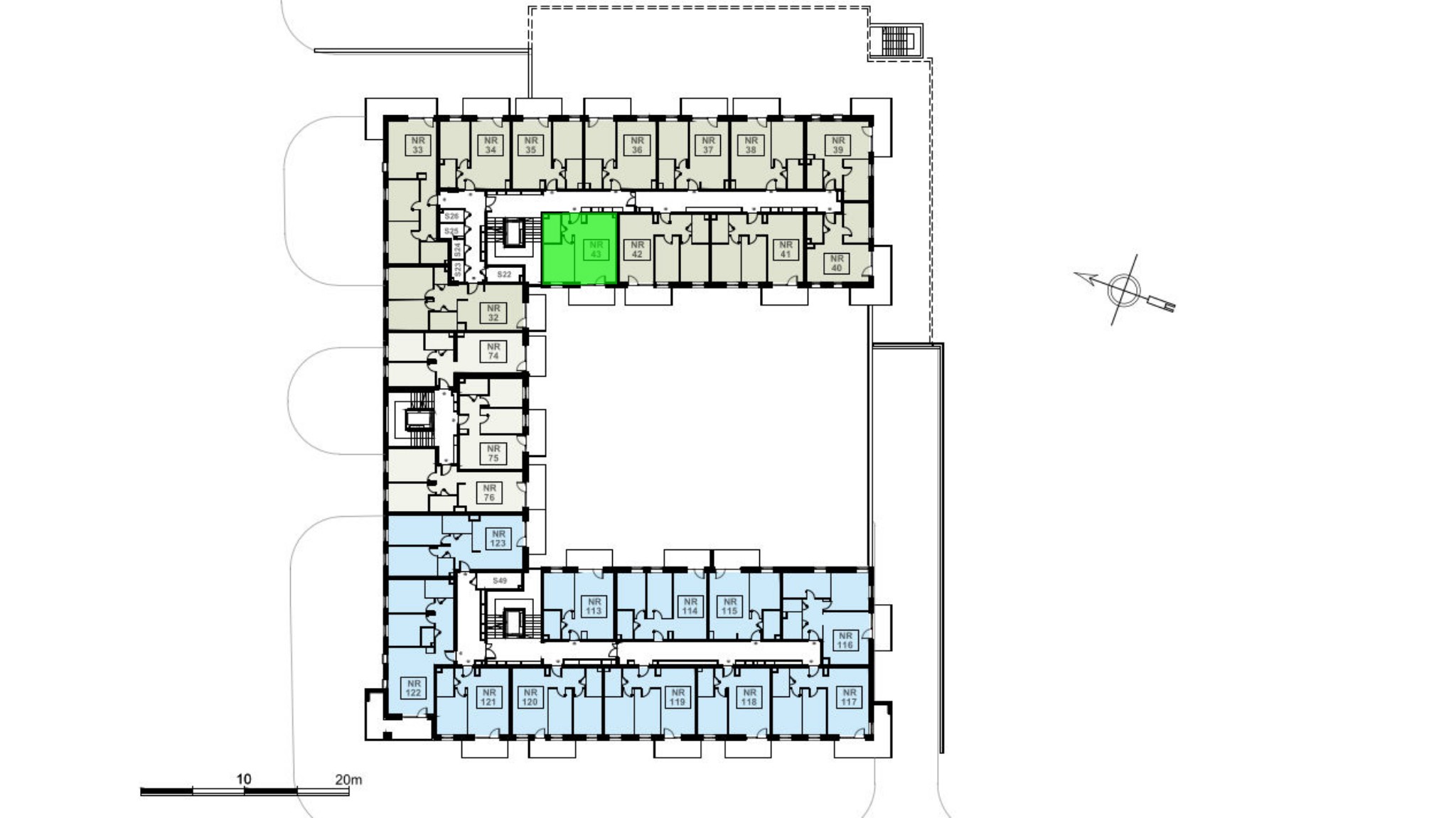
Budynek Ludowa C
Powierzchnia 42,87 m2
Piętro 3 (Piętro III)
Pokoje 2
Całkowita cena brutto
364 395 PLN