cena Mieszkania

368 682 PLN

cena za metr kw.

8 600 PLN

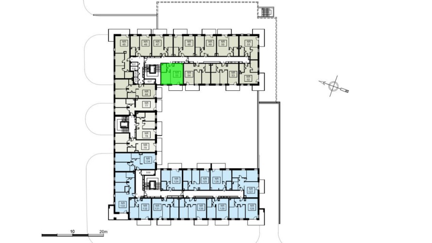
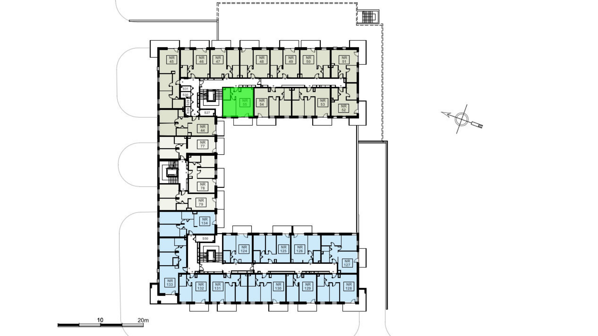
Budynek Ludowa C
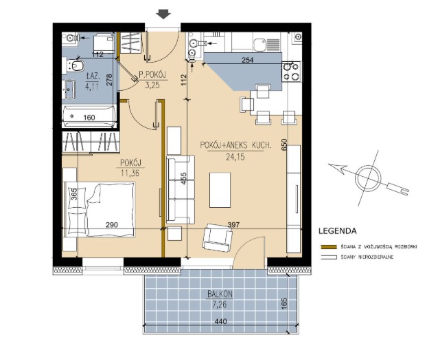
Powierzchnia 42,87 m2
Piętro 4 (Piętro IV)
Pokoje 2
Całkowita cena brutto
368 682 PLN