cena Mieszkania

517 092 PLN

cena za metr kw.

8 200 PLN

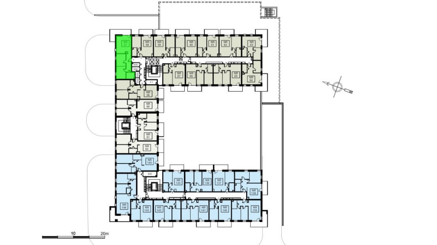
Budynek Ludowa C
Powierzchnia 63,06 m2
Piętro 5 (Piętro V)
Pokoje 3
Całkowita cena brutto
517 092 PLN