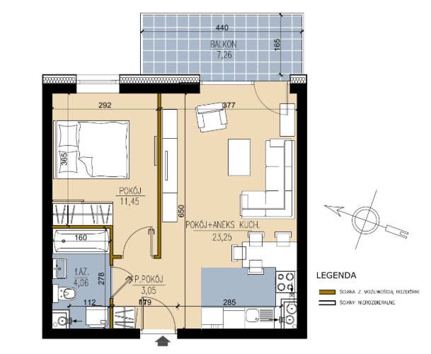
cena Mieszkania

363 747 PLN

cena za metr kw.

8 700 PLN

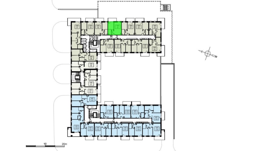
Budynek Ludowa C
Powierzchnia 41,81 m2
Piętro 5 (Piętro V)
Pokoje 2
Całkowita cena brutto
363 747 PLN