cena Mieszkania

353 770 PLN

cena za metr kw.

8 500 PLN

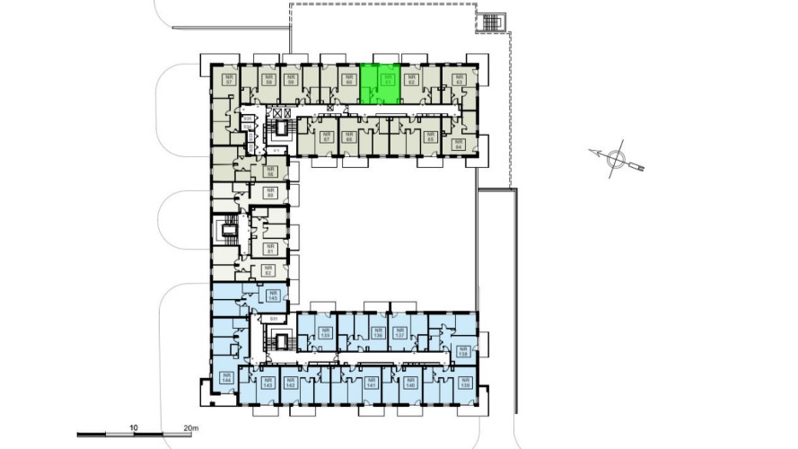
Budynek Ludowa C
Powierzchnia 41,62 m2
Piętro 5 (Piętro V)
Pokoje 2
Całkowita cena brutto
353 770 PLN