cena Mieszkania

365 245 PLN

cena za metr kw.

8 500 PLN

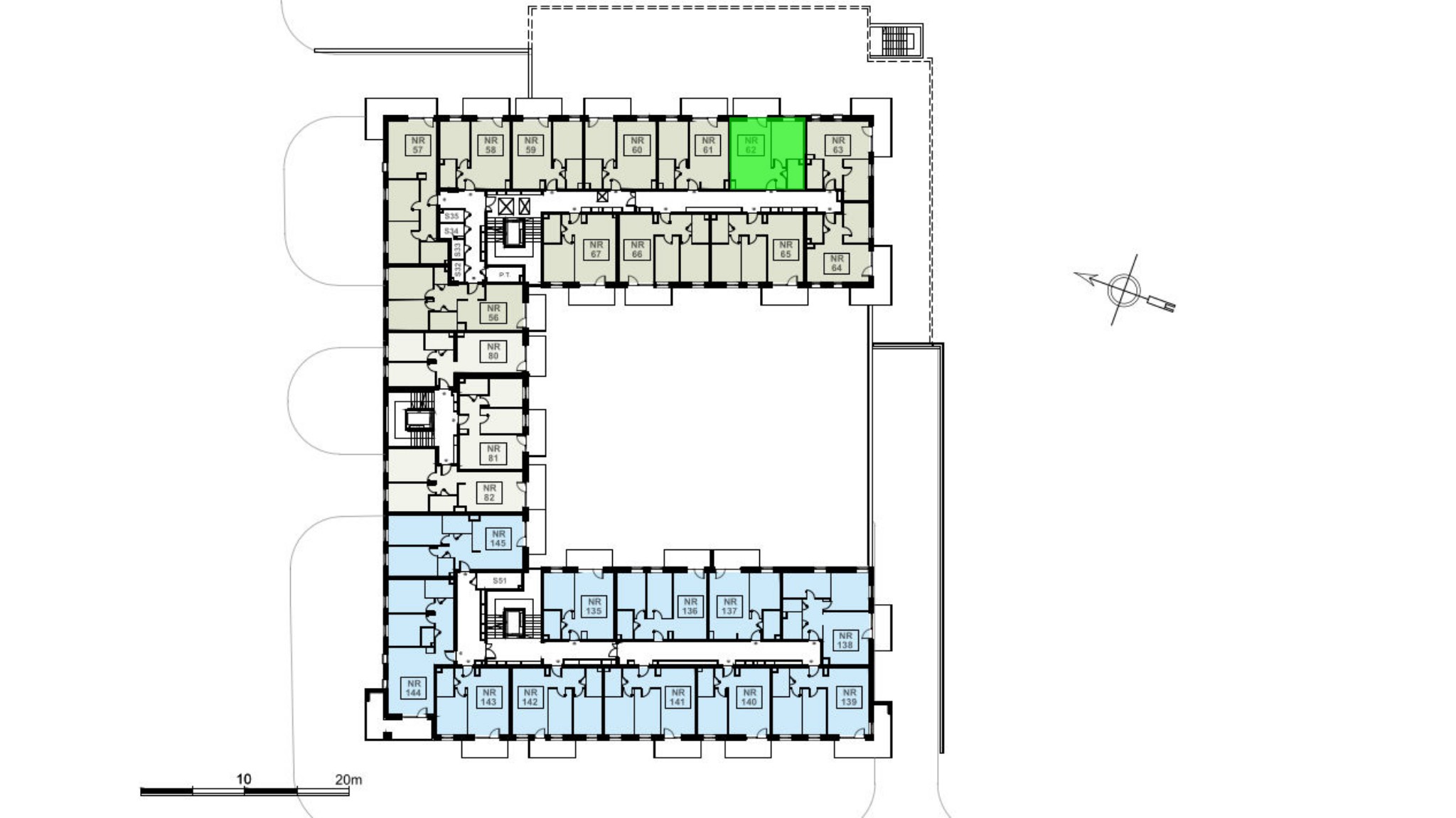
Budynek Ludowa C
Powierzchnia 42,97 m2
Piętro 5 (Piętro V)
Pokoje 2
Całkowita cena brutto
365 245 PLN