cena Mieszkania

451 775 PLN

cena za metr kw.

8 500 PLN

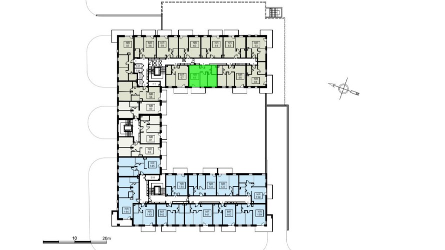
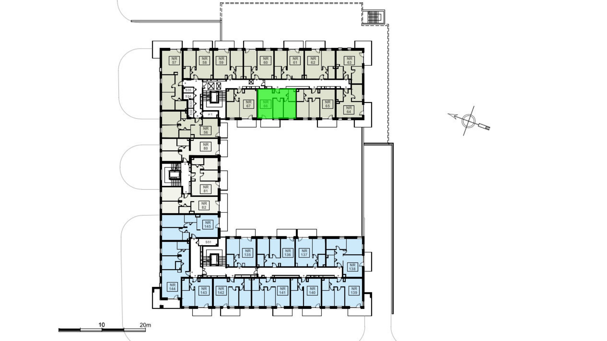
Budynek Ludowa C
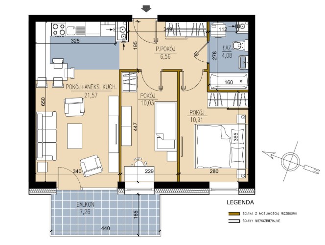
Powierzchnia 53,15 m2
Piętro 5 (Piętro V)
Pokoje 3
Całkowita cena brutto
451 775 PLN