cena Mieszkania

467 160 PLN

cena za metr kw.

8 500 PLN

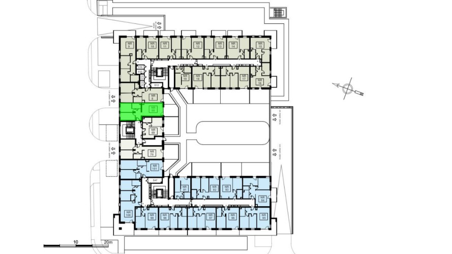
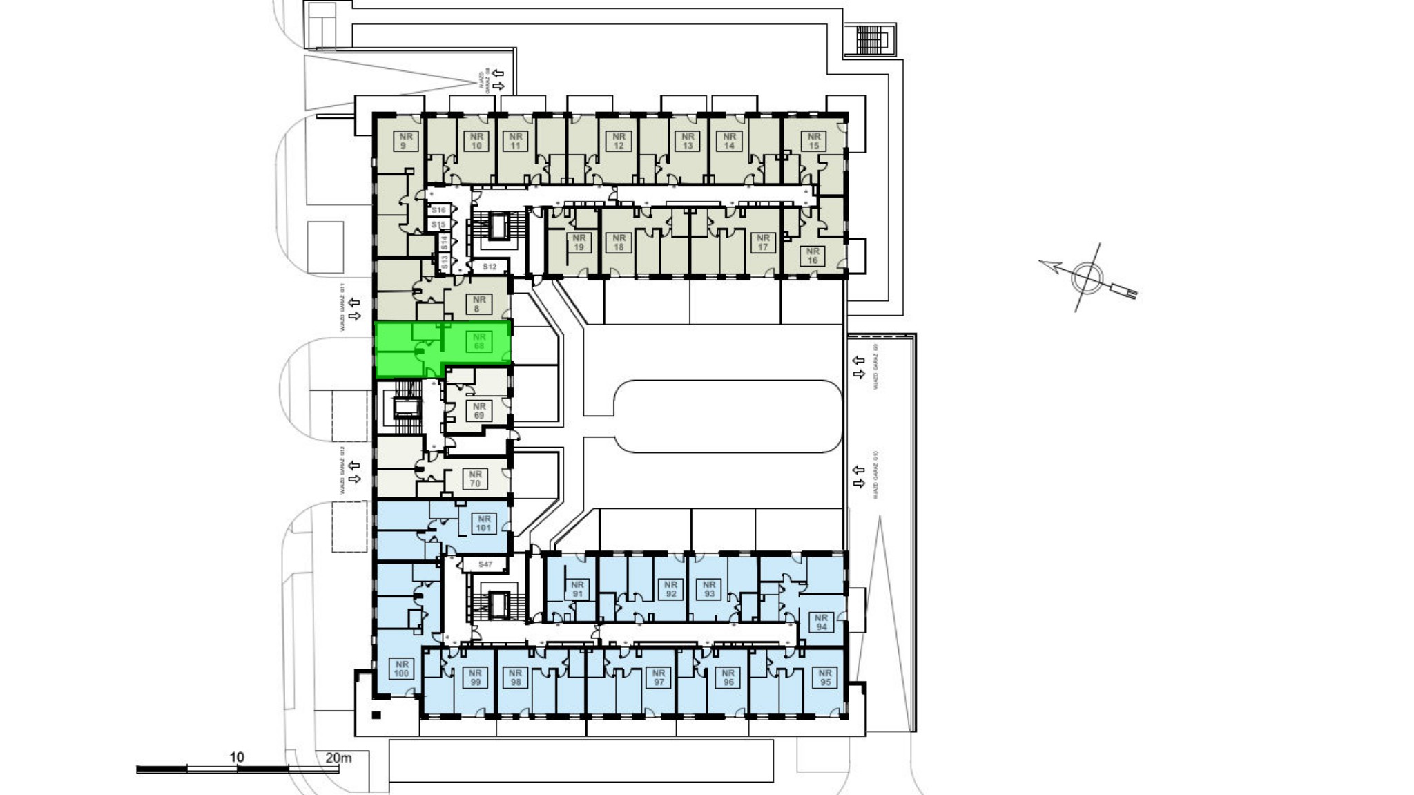
Budynek Ludowa C
Powierzchnia 54,96 m2
Piętro 1 (Piętro I)
Pokoje 3
Całkowita cena brutto
467 160 PLN