cena Mieszkania

478 152 PLN

cena za metr kw.

8 700 PLN

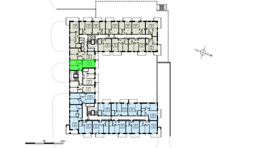
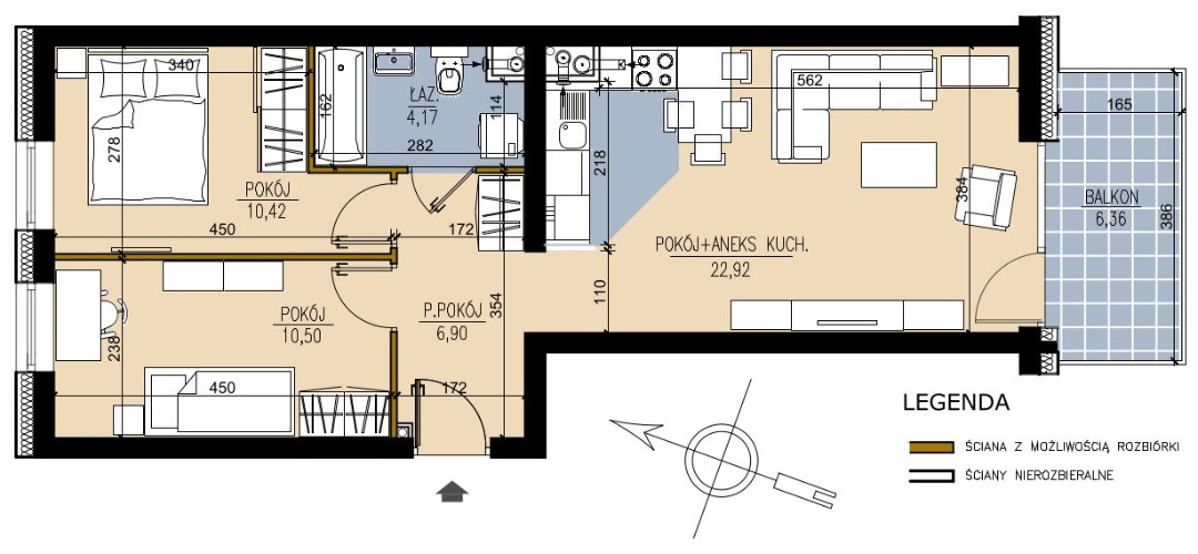
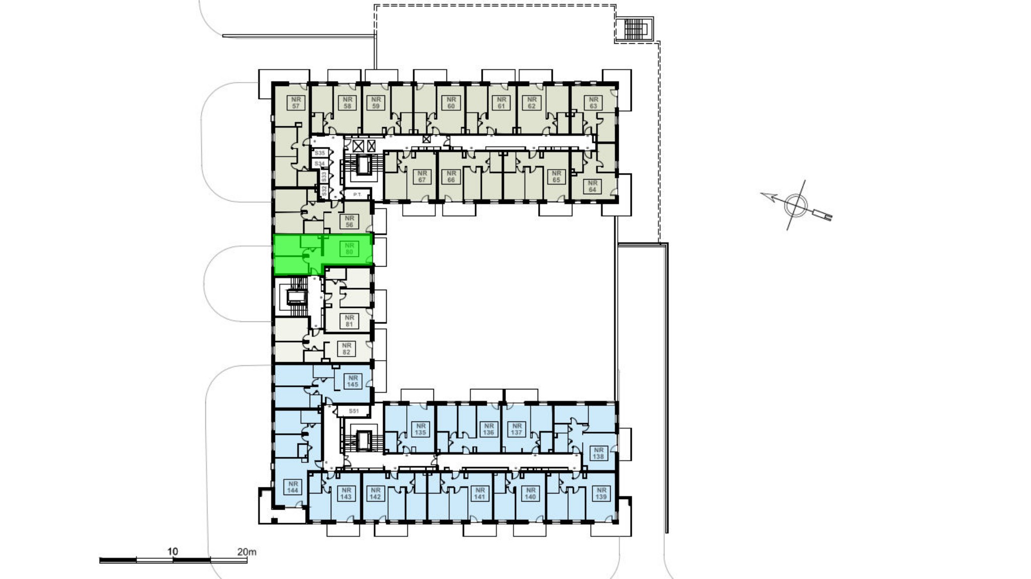
Budynek Ludowa C
Powierzchnia 54,96 m2
Piętro 5 (Piętro V)
Pokoje 3
Całkowita cena brutto
478 152 PLN