cena Mieszkania

388 195 PLN

cena za metr kw.

8 500 PLN

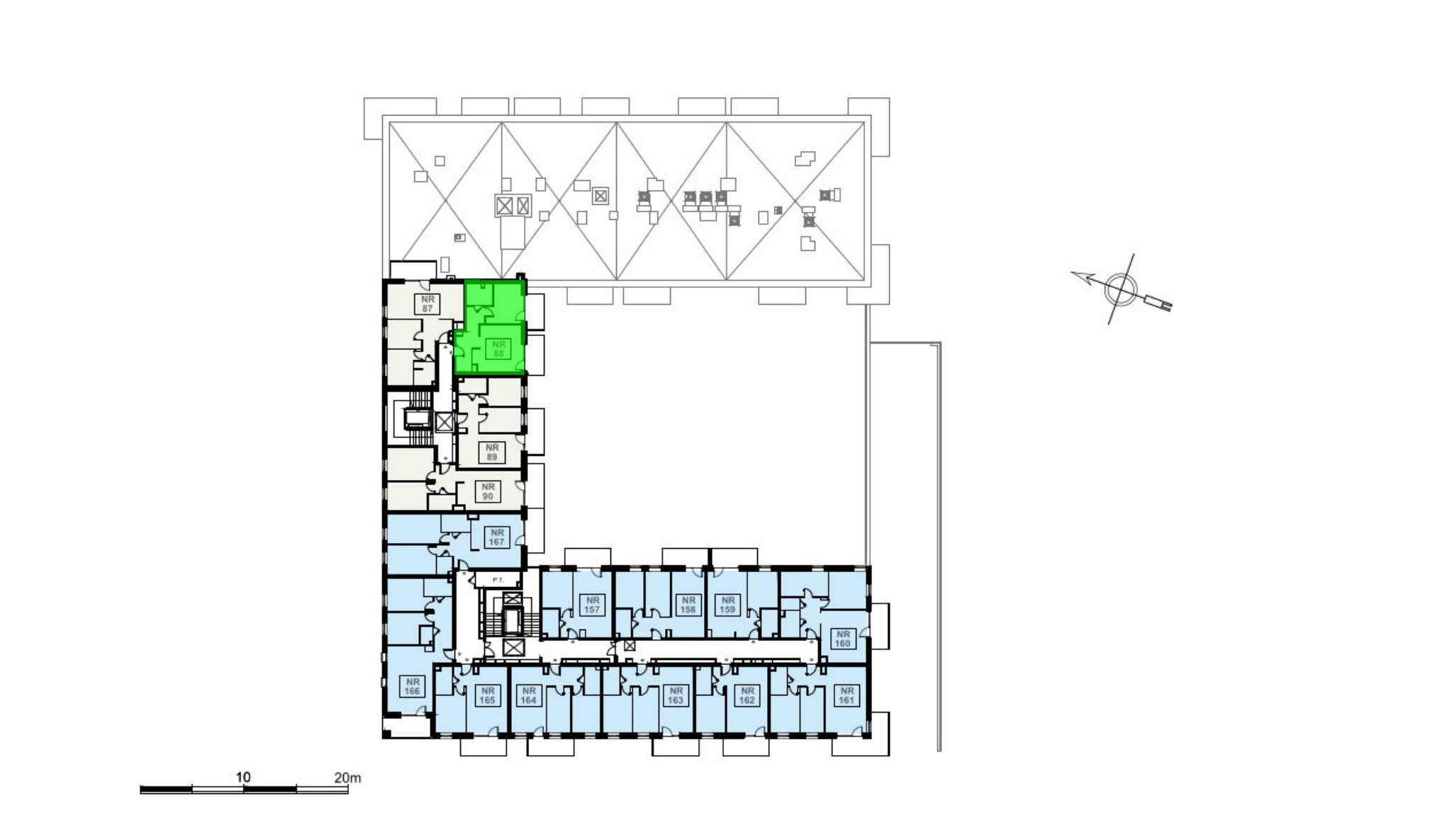
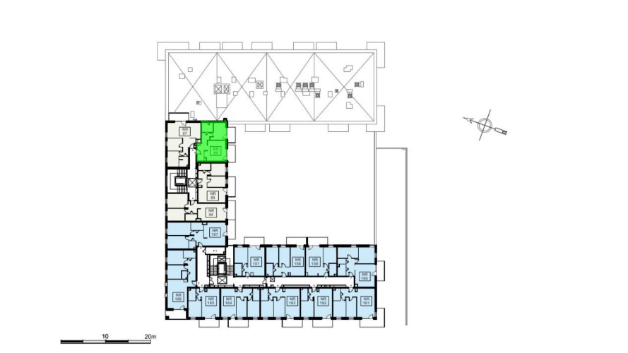
Budynek Ludowa C
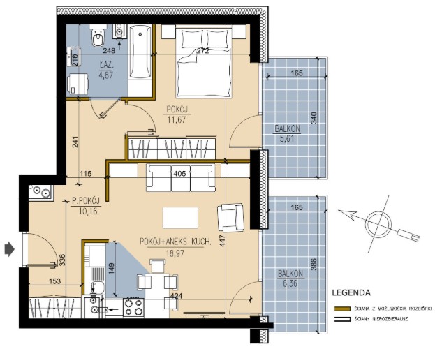
Powierzchnia 45,67 m2
Piętro 7 (Piętro VII)
Pokoje 2
Całkowita cena brutto
388 195 PLN