cena Mieszkania

425 680 PLN

cena za metr kw.

8 500 PLN

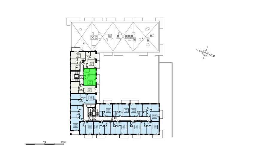
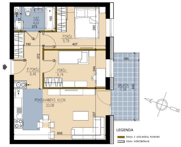
Budynek Ludowa C
Powierzchnia 50,08 m2
Piętro 7 (Piętro VII)
Pokoje 3
Całkowita cena brutto
425 680 PLN