cena Mieszkania

493 595 PLN

cena za metr kw.

8 500 PLN

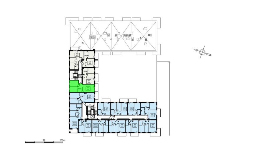
Budynek Ludowa C
Powierzchnia 58,07 m2
Piętro 7 (Piętro VII)
Pokoje 3
Całkowita cena brutto
493 595 PLN