cena Mieszkania

480 480 PLN

cena za metr kw.

8 400 PLN

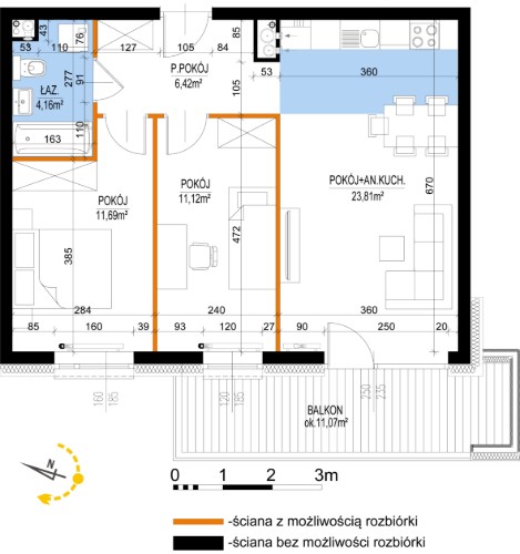
Budynek Warszawska Bud. 3
Powierzchnia 57,20 m2
Piętro 4 (Piętro IV)
Pokoje 3
Całkowita cena brutto
480 480 PLN