cena Mieszkania

504 806 PLN

cena za metr kw.

8 300 PLN

Budynek Warszawska Bud. 3
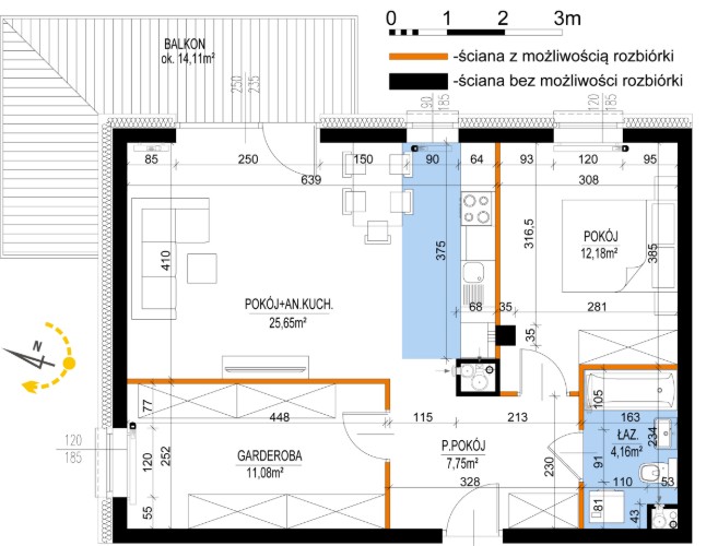
Powierzchnia 60,82 m2
Piętro 4 (Piętro IV)
Pokoje 2
Całkowita cena brutto
504 806 PLN