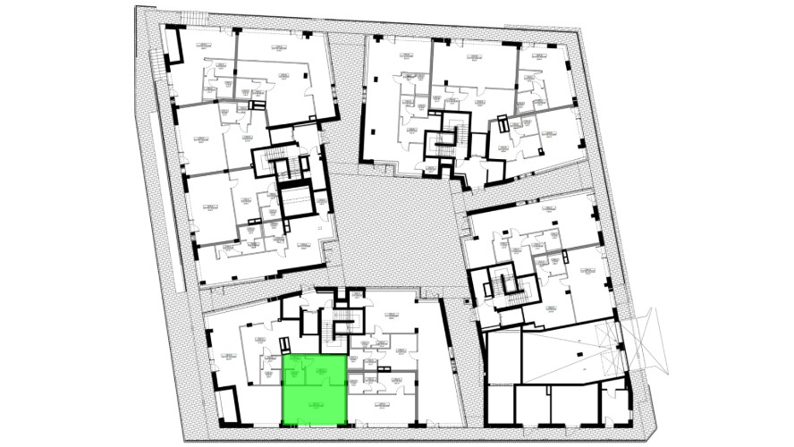
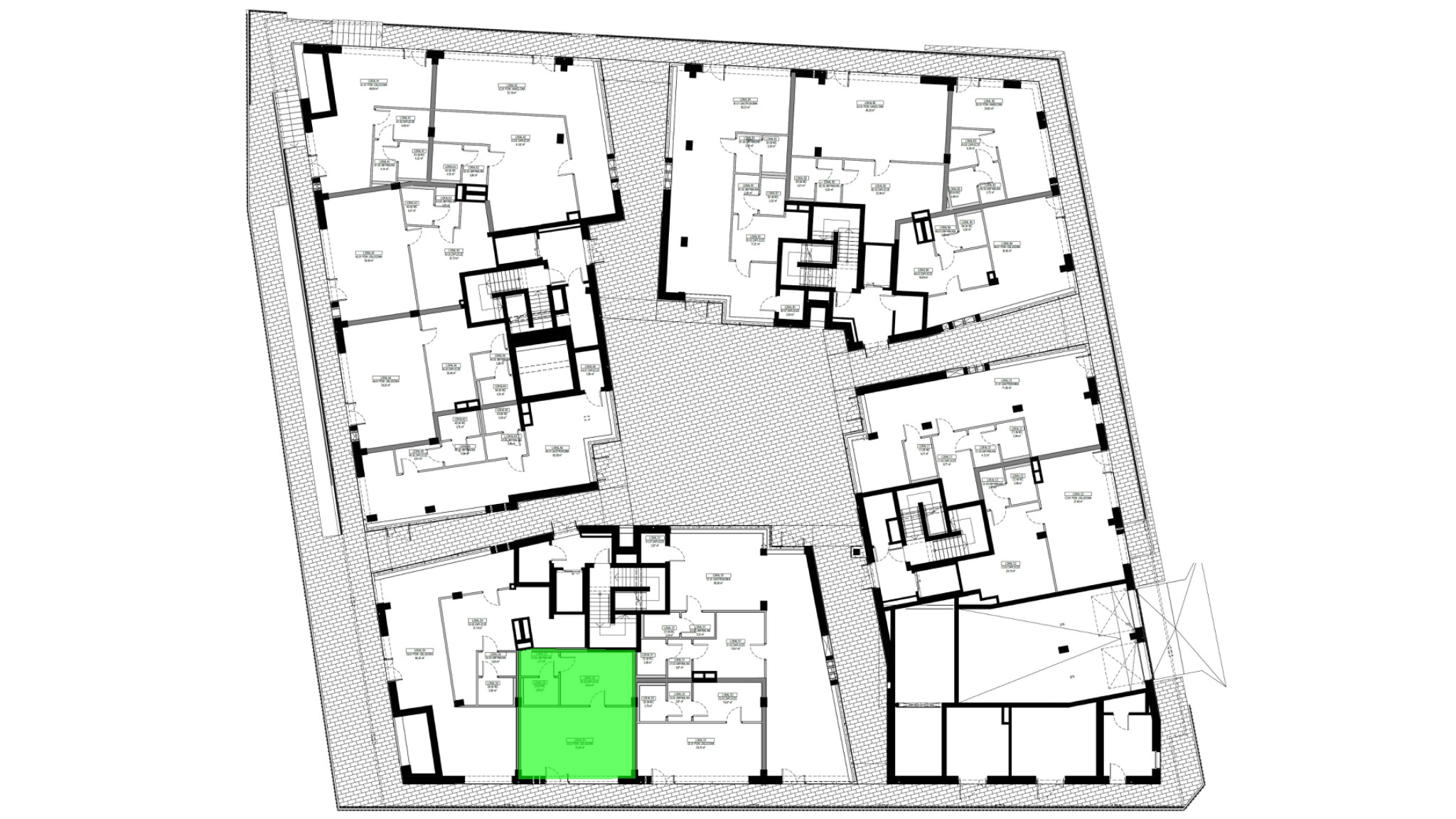
Budynek Św. Rocha Bud.1
Powierzchnia 54,65 m2
Piętro 0 (Parter)