cena Lokalu usługowego (netto)

1 476 255 PLN

cena za metr kw.

11 500 PLN

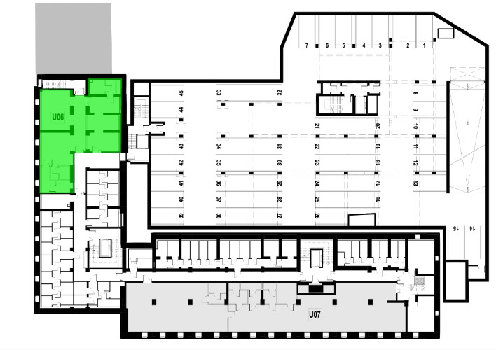
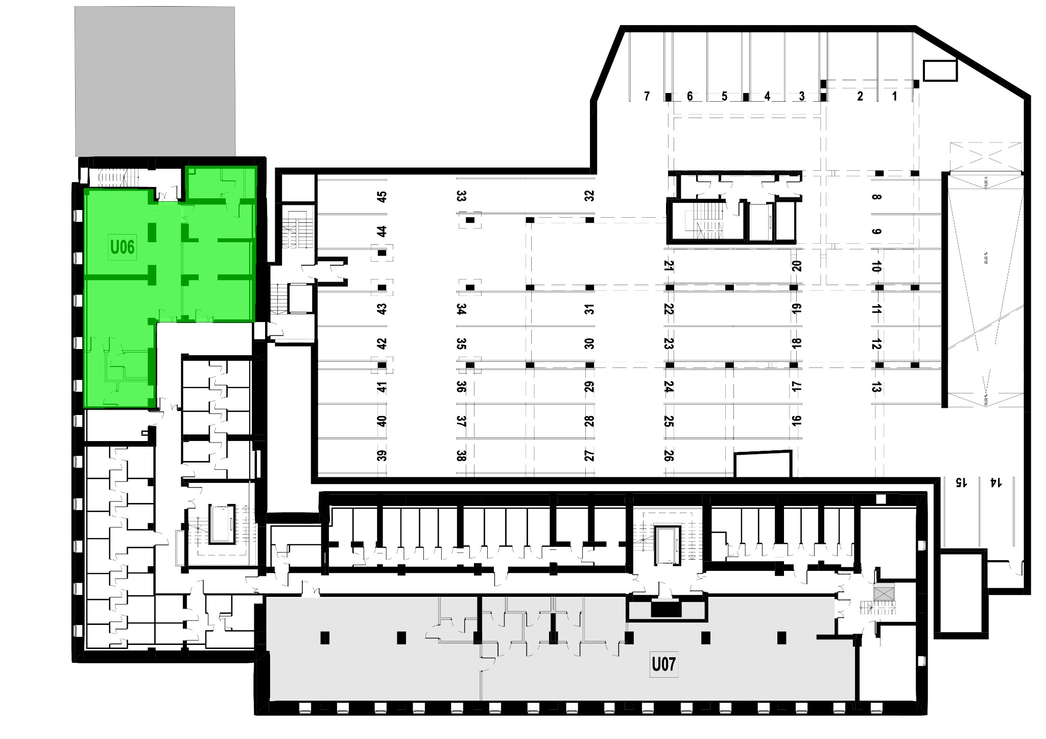
Budynek Sienkiewicza 71/73
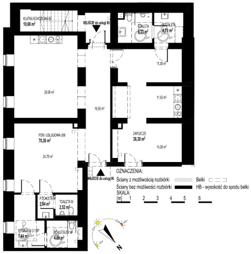
Powierzchnia 128,37 m2
Piętro -1 (Poziom -1)
Całkowita cena netto
1 476 255 PLN