cena Mieszkania

1 886 938 PLN

cena za metr kw.

11 800 PLN

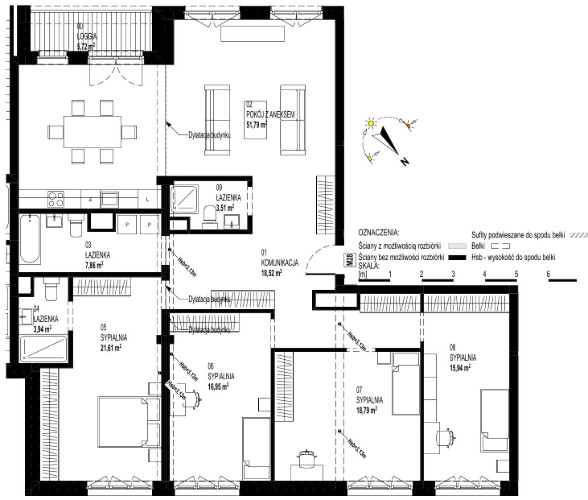
Budynek Sienkiewicza 71/73
Powierzchnia 159,91 m2
Piętro 4 (Piętro IV)
Pokoje 5
Loggia 5,72 m²
Całkowita cena brutto
1 886 938 PLN