cena Mieszkania

1 211 000 PLN

cena za metr kw.

12 500 PLN

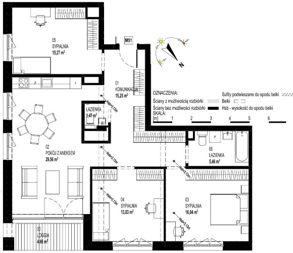
Budynek Sienkiewicza 71/73
Powierzchnia 96,88 m2
Piętro 4 (Piętro IV)
Pokoje 4
Loggia 4,66 m²
Całkowita cena brutto
1 211 000 PLN