cena Mieszkania

769 698 PLN

cena za metr kw.

12 200 PLN

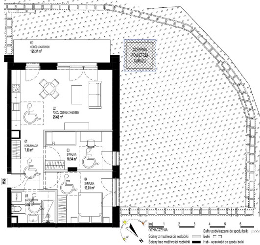
Budynek Sienkiewicza 71/73
Powierzchnia 63,09 m2
Piętro 0 (Parter)
Pokoje 3
Ogródek ok. 128,01 m²
Całkowita cena brutto
769 698 PLN