cena Mieszkania

643 000 PLN

cena za metr kw.

12 500 PLN

Budynek Sienkiewicza 71/73
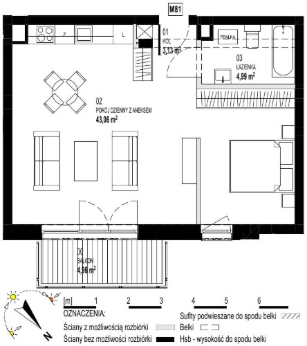
Powierzchnia 51,44 m2
Piętro 4 (Piętro IV)
Pokoje 1
Balkon ok. 4,96 m²
Całkowita cena brutto
643 000 PLN